
設計師簡介:陸穎坤 紫蘋果上海公司首席設計師
案例說明
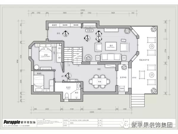
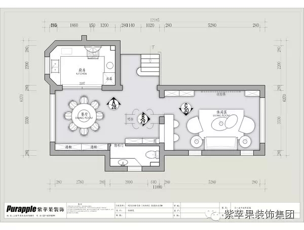
項目名稱:圣得恒業(yè)花園
面積:332m2
風格:簡約美式
本案業(yè)主是一名外企高管,為人低調,待人彬彬有禮。擁有三口之家的業(yè)主,非常注重生活品質。通過平時的溝通閑聊,設計師了解了業(yè)主鐘愛休閑放松的居家氛圍,于是設計師為業(yè)主設計了簡約的美式效果,不同于古典的美式,簡美不需要太多的花式和繁雜的色系,而是主張淳樸簡約,去掉零碎的空間劃分,凝造的是不失貴氣又絕對讓人放松的氛圍。









最新文章
紫蘋果聲明:
Copyright 2020 m.shzhujing.cn All Rights Reserved. 蘇ICP備18037275號-2
蘇公網安備32021302002167 上海紫蘋果裝飾有限公司無錫第一分公司版權所有
紫蘋果國際設計-品質贏得口碑